· MINIMALISTIC ·
CONCEPT
SIMPLICITY · ELEGANCE · AMPLITUDE
The concept of this project focuses on creating simple and elegant spaces. By using apparent materials, creating simple shapes, taking advantage of natural lighting and ventilation we manage to form a minimalist project. Each space is thought to detail to achieve comfort and functionality suitable for each person.
· COMPOSITION ·
Architecture
The project consists of two main volumes, on the right side a module stands out which has the functionality of a terrace. In it is a wooden pergolate which becomes a visual attraction, in addition to allowing natural lighting and ventilation to the main bedroom.
The facade is predominantly color white, which allows for order, clarity and elegance.
Neutral colors and apparent materials were used to achieve naturalness in each space.
The play of light and shadow inside the building creates an atmosphere of tranquility and warmth.
· ENVIRONMENTAL IMPACT·
Renewable energies
We are aware of the great importance of caring for the environment, which is why this project will implement renewable technologies, thus affirming our responsibility to be an environmentally friendly company.
LITLA will have:
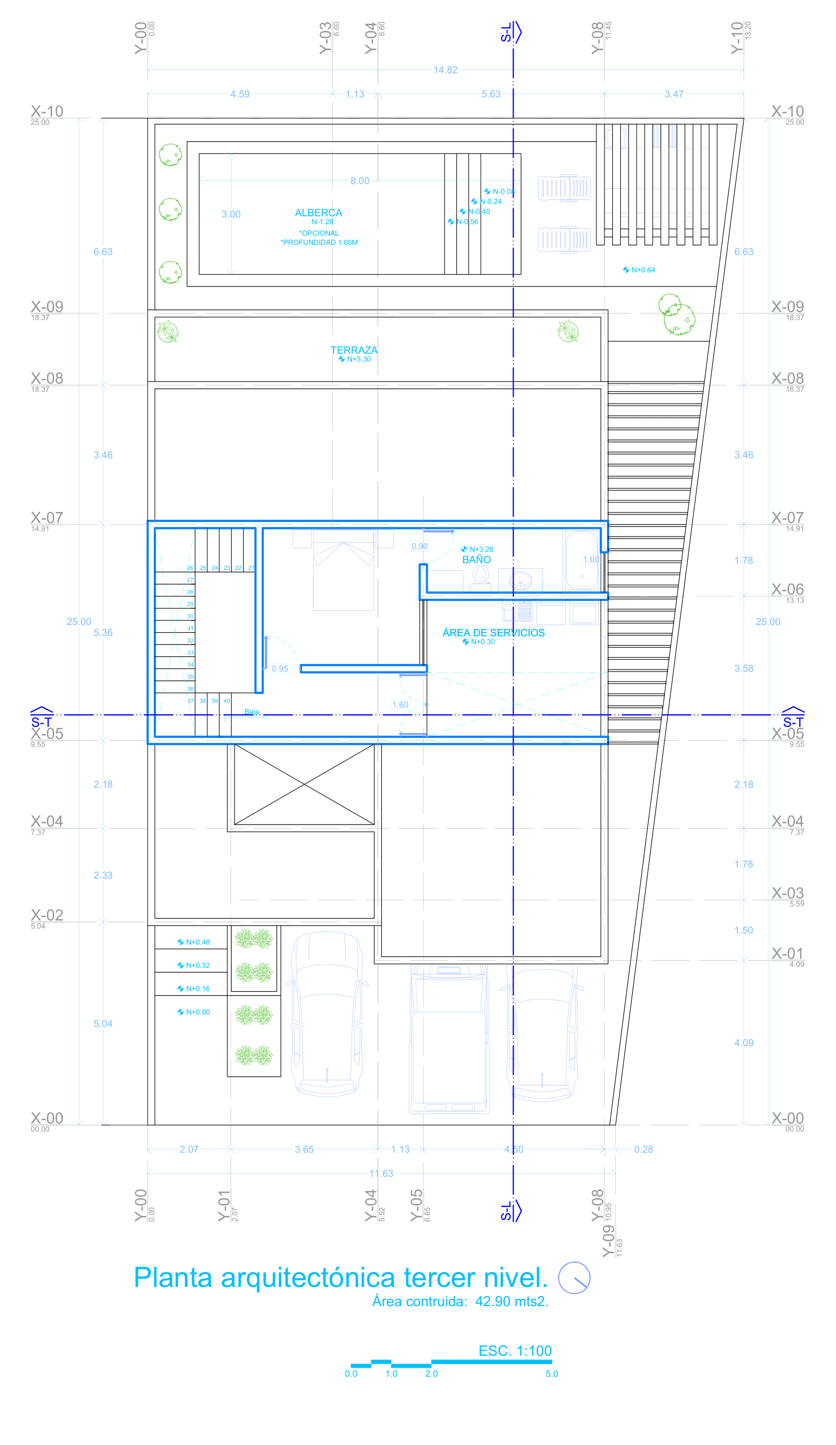
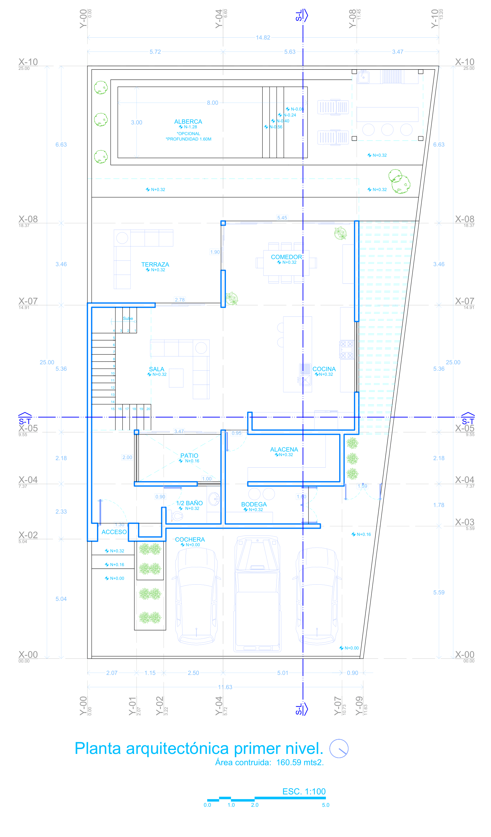
· ARCHITECTURAL PROGRAM ·
PRIMER NIVEL
- GARAGE (2 CARS).
- ½ BATHROOM.
- WARDROBE.
- INNER COURTYARD.
- LIVING ROOM.
- KITCHEN.
- DINING ROOM.
- CUPBOARD.
- CELLAR.
- TERRACE.
- STEAKHOUSE.
- GARDEN.
- SWIMMING POOL (OPTIONAL).
- ½ OUTDOOR BATH (OPTIONAL).
SEGUNDO NIVEL
- TV ROOM.
- STUDIO.
- BATHROOM.
- 2 SINGLE BEDROOMS WITH TERRACE.
- MASTER BEDROOM WITH BATHROOM, DRESSING ROOM AND TERRACE.
TERCER NIVEL
- SERVICE ROOM WITH BATHROOM.
- SERVICE AREA.
- BACKYARD.