· CONCEPTO ·
MINIMALISMO
Simplicidad · elegancia · amplitud
El concepto de este proyecto se enfoca en crear espacios simples y elegantes. Al utilizar materiales aparentes, crear formas simples, aprovechar la iluminación y ventilación natural logramos conformar un proyecto minimalista. Cada espacio está pensado a detalle para lograr comodidad y funcionalidad adecuada para cada persona.
· COMPOSICIÓN ·
ARQUITECTURA
El proyecto se compone por dos volúmenes principales, de lado derecho sobresale un módulo el cual tiene la funcionalidad de terraza. En el se encuentra un pergolado de madera lo que se convierte en un atractivo visual, además de permitir iluminación y ventilación natural a la recámara principal.
En la fachada predomina el color blanco, lo que permite tener orden, claridad y elegancia.
Se utilizaron colores neutros y materiales aparentes para lograr naturalidad en cada espacio.
El acceso principal resalta por el color marrón, a su vez el volumen que enmarca dicho acceso sobresale volviéndolo un remate visual.
El juego de luces y sombras que se encuentran en el interior de la edificación logra crear un ambiente de tranquilidad y calidez.
· IMPACTO AMBIENTAL ·
ENERGÍAS RENOVABLES
Sabemos la gran importancia del cuidado del medio ambiente, es por ello que este proyecto implementará las tecnologías renovables, de esta forma afirmamos nuestra responsabilidad de ser una empresa amigable con el medio ambiente.
LITLA contará con:
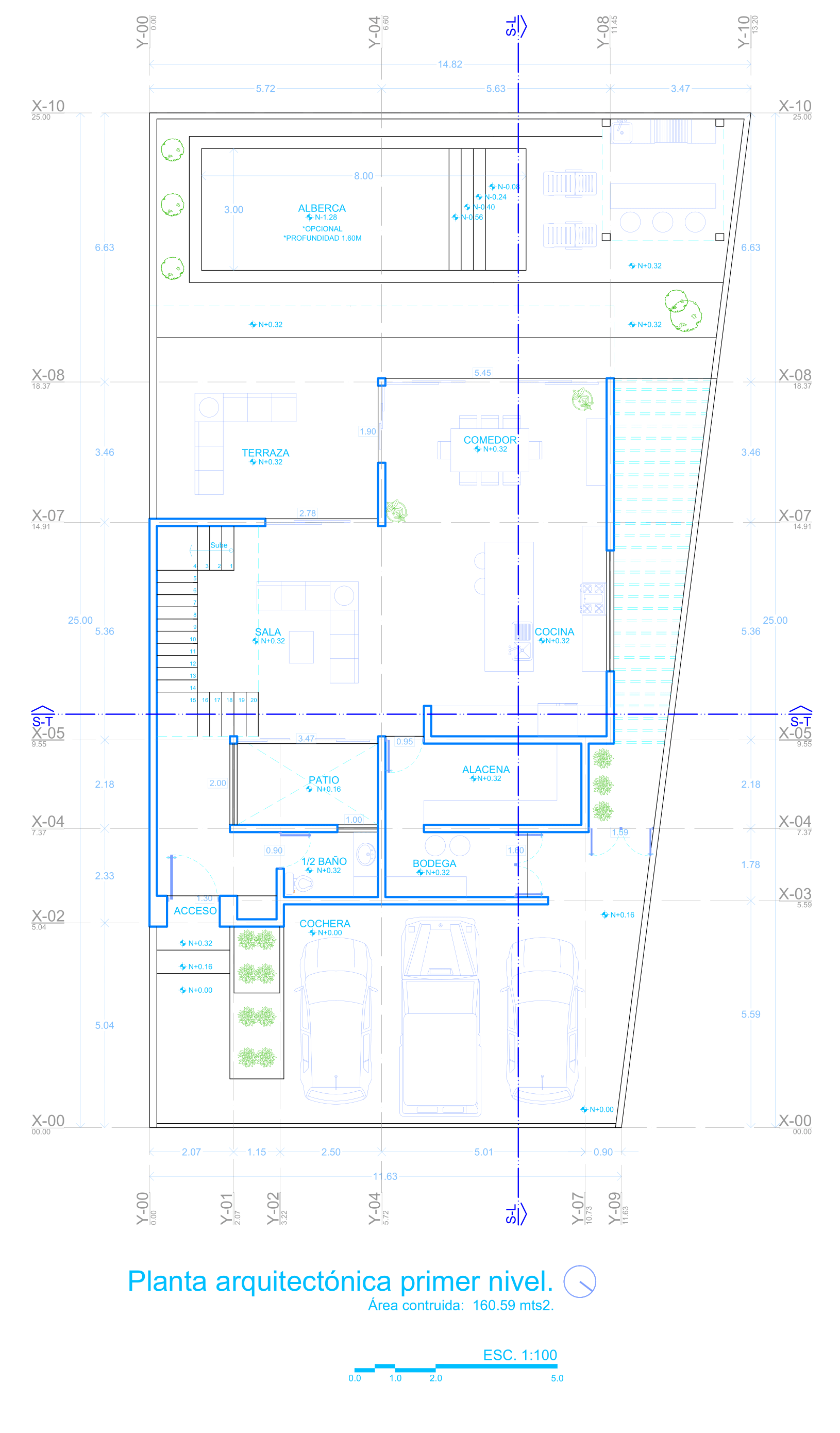
· PROGRAMA ARQUITECTÓNICO ·
PRIMER NIVEL
- COCHERA (2 AUTOS).
- ½ BAÑO.
- GUARDA ROPA.
- PATIO INTERIOR.
- SALA.
- COCINA.
- COMEDOR.
- ALACENA.
- BODEGA.
- TERRAZA.
- ÁREA DE ASADOR.
- JARDÍN.
- ALBERCA (OPCIONAL).
- ½ BAÑO EN EXTERIOR (OPCIONAL).
SEGUNDO NIVEL
- SALA DE TV.
- ESTUDIO.
- BAÑO.
- 2 RECÁMARAS SENCILLAS CON TERRAZA.
- RECAMARA PRINCIPAL CON BAÑO, VESTIDOR Y TERRAZA.
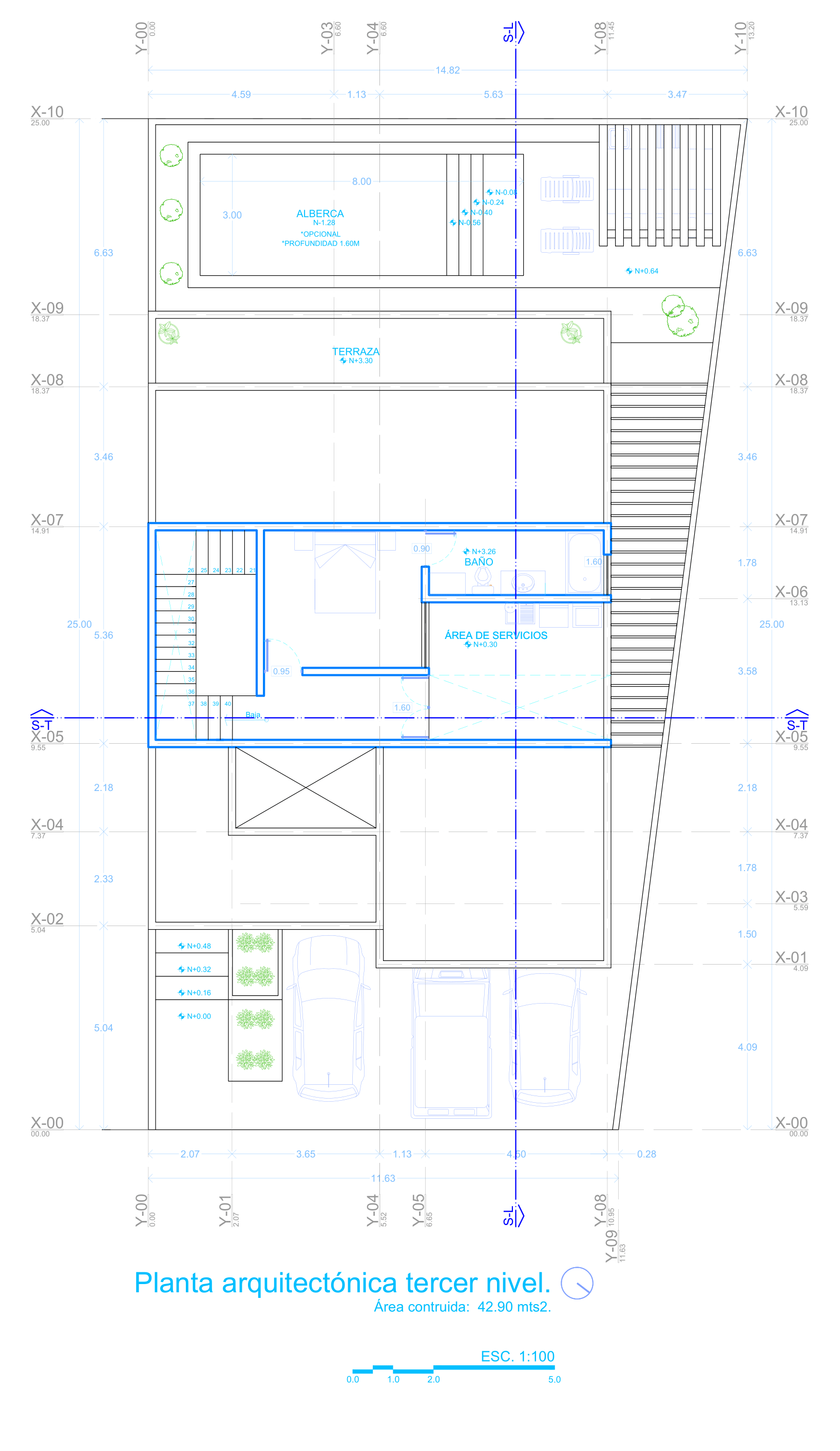
TERCER NIVEL
- CUARTO DE SERVICIOS CON BAÑO.
- ÁREA DE SERVICIOS.
- PATIO.